90 mq
2
2
Garage/Posto Auto
Autonomo
In attesa di certificazione

Descrizione

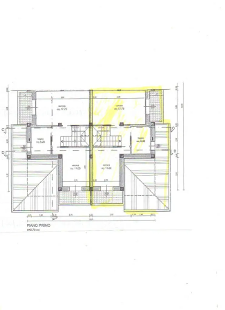
Rif. Formignana - Formignana centro, in nuova zona residenziale, libera subito ultima villetta ad angolo, di nuova costruzione, mai abitata, in trifamiliare, indipendente su 2 lati e disposta su 2 piani, composta da: P.T.) ingresso ind., soggiorno, cucina ab., piccolo servizio/lavanderia, rip.; 1 ° P.) disimpegno, 2 camere da letto (MD), bagno, 2 balconi, ampia mansarda finestrata uso studio o 3^ letto, intonacata con predisposizione per il 3° bagno. Garage. Scoperto di proprietà con posto auto. Risc. aut. Predisposizione clima. Possibilità di scegliere le rifiniture.

Planimetrie

Altre caratteristiche

Stato Immobile
Nuovo
Vani
4
Tipo di cucina
Abitabile
Balconi
1
Posto auto
Riservato
Piano
Terra
Tipologia Immobile
Villa singola
Categoria Immobile
Case e Appartamenti
Contatta Agenzia
Proposto da: IMMOBILIARE MASTER CASA

Quotazioni immobiliari per Tresignana