160 mq
3
2
Garage/Posto Auto
Giardino privato
Autonomo

Descrizione

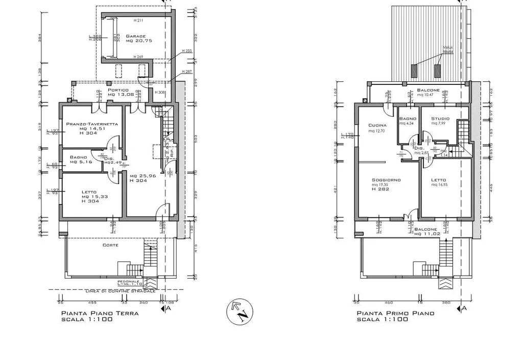
Rif. 3975 - Villa indipendente su tre lati con giardino esclusivo in vendita a Marrara, Ferrara. Situata in zona residenziale vicino al paese, la casa è attualmente utilizzata come due appartamenti, uno al pianoterra e uno al piano primo collegati a piacere tramite scala interna. Al piano terra, ingresso su zona salotto, grande cucina abitabile, bagno, camera da letto. Accesso al patio esterno e al giardino. Al piano primo appartamento con soggiorno con cucina abitabile a vista, balcone con affaccio sul retro, due camere da letto, bagno finestrato. Internamente, una scala che collega i due piani permette di poter vivere la casa come unifamiliare con zona giorno al piano terra e zona notte al piano primo. Il giardino corre sui tre lati e si sviluppa per la maggior parte sull’interno, dove si trova un garage e una tettoia ad uso ripostiglio oltre al cancello di accesso al canale retrostante. La ristrutturazione ha incluso una nuova stufa a pellet canalizzata per il piano terra, tetto nuovo, infissi nuovi, rifatto completamente pavimentazione autobloccante del giardino e i cancelli. La caldaia è una per tutta la casa. Impianti già a norma all’epoca dell’acquisto e controllati dopo l’ammodernamento. Potete contattarci senza impegno per maggiori informazioni o per prenotare un appuntamento per visionare questa villa indipendente su tre lati in vendita a Carrara, Ferrara., Cod. 3975. €. 189.000

Altre caratteristiche

Stato Immobile
Ristrutturato
Anno costruzione
1970
Vani
6
Tipo di cucina
Abitabile
Balconi
1
Terrazze / Logge
1
Metratura giardino
350
Piano
Su più livelli
Piani totali della palazzina
2
Condizionamento
Installato
Tipologia Immobile
Villa singola
Categoria Immobile
Case e Appartamenti
Contatta Agenzia
Proposto da: Progetto Casa Ferrara

Quotazioni immobiliari per Via Del Primaro - Ferrara