200 mq
3
3
Giardino privato
Autonomo
E

Descrizione

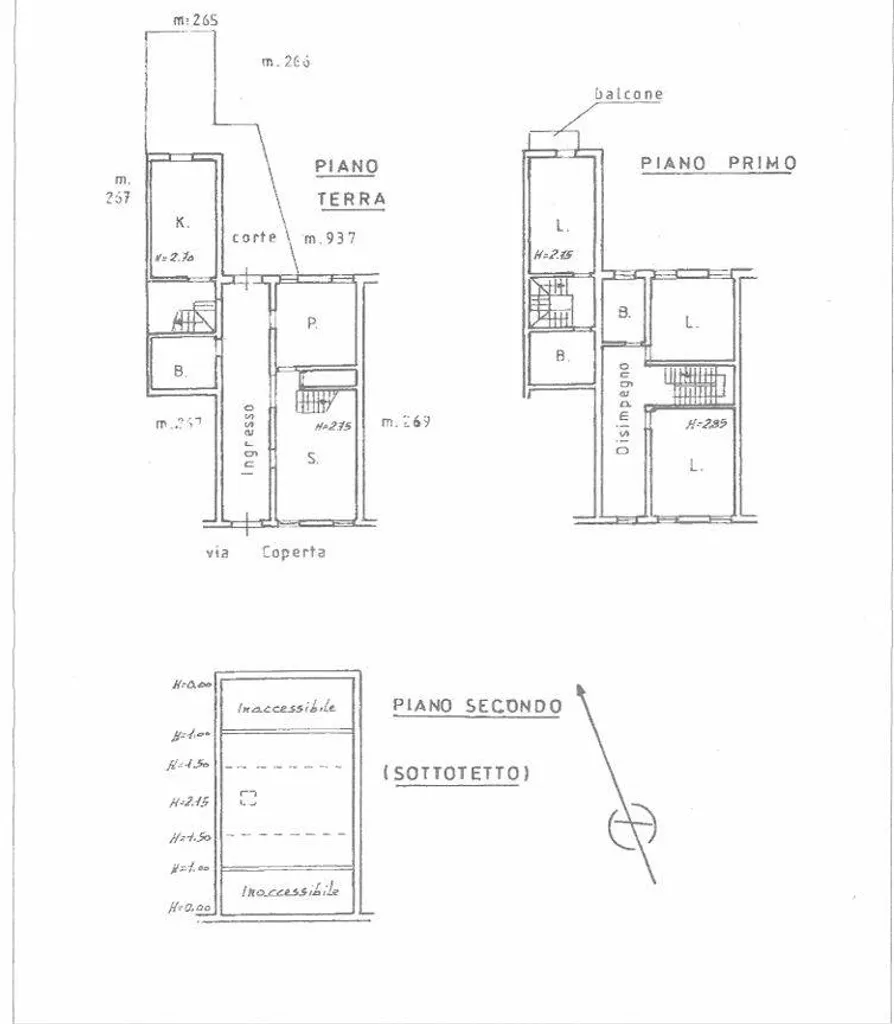
Rif. 3855 - Casa indipendente con giardino in Vendita nel cuore del centro storico di Ferrara, Via Coperta. L'unità immobiliare è indipendente e disposta su due piani: piano terra e piano primo con eventuale possibilità di sottotetto. Al piano terra ampio ingresso con accesso alla corte esclusiva, salone con camino, zona pranzo, cucina abitabile con ulteriore accesso al giardino,un ampio bagno con doccia e zona lavanderia, due ripostigli. Al piano primo, troviamo il reparto notte composto da un ampio disimpegno, tre camere da letto, due bagni ed un balcone. Possibilità di sottotetto attualmente accessibile tramite botola. Giardino esclusivo di circa mq 50. I pavimenti sono in cotto al piano terra mentre al piano primo in parquet. L'immobile ha la possibilità di ottenere due soluzioni abitative ottime come soluzione genitori e figli. Possibilità di acquisto di un posto auto in autorimessa. COD.3855 € 430.000

Altre caratteristiche

Stato Immobile
In ottime condizioni
Vani
6
Tipo di cucina
Abitabile
Balconi
1
Terrazze / Logge
1
Piano
Su più livelli
Tipologia Immobile
Villa singola
Categoria Immobile
Case e Appartamenti
Contatta Agenzia
Proposto da: Progetto Casa Ferrara

Quotazioni immobiliari per Via Coperta - Ferrara