709 mq
6
3
Giardino privato
Autonomo

Descrizione

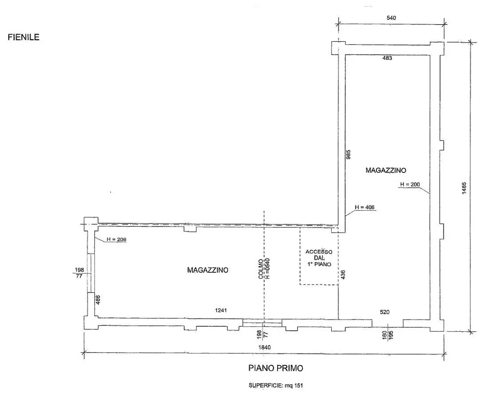
Rif. 3776 - Villa con due unità e fienile in vendita a San Martino, Ferrara. Inserita in un parco di circa 4000 mq, vendiamo casa indipendente composta da due porzioni attualmente collegate tra loro e parte di fienile con possibilità di cambio d'uso. La prima abitazione è composta da, ingresso, cucina, pranzo, salotto, un bagno con doccia, una zona caldaia con camino e ampia cantina. Al piano superiore, tre camere da letto matrimoniali di cui una con ampia cabina armadio dedicata. Bagno. La seconda abitazione si compone di, al piano terra, un ampio ingresso, salone con camino di circa 40 mq e affaccio sul parco, cucina abitabile, pranzo salotto con ulteriore uscita sul giardino. Scala di marmo che accompagna la zona notte. Al Piano superiore grande disimpegno con zona Studio, tre camere da letto matrimoniali di cui una con cabina armadio dedicata, bagno privato. Secondo bagno con vasca. Parco comune eventualmente divisibile di circa 4000 mq, già dotato di due accessi carrabili separati. Un terzo accesso si trova sul retro e può disimpegnare il fienile in caso di creazione di nuova unità immobiliare. Internamente le unità portano i segni del tempo e necessitano di essere completamente ristrutturate per la parte di impiantistica, pavimentazione e infissi. Porzione di fienile di circa 290 mq disposto su due livelli fruibile come garage, deposito o per la trasformazione in unità abitativa indipendente. Potete contattarci senza impegno per ricevere maggiori informazioni o fissare un appuntamento per visionare questa Villa con due unità e fienile in vendita a San Martino, Ferrara. Cod. 3776. €.480.000

Altre caratteristiche

Stato Immobile
Da ristrutturare
Anno costruzione
1970
Vani
10
Tipo di cucina
Abitabile
Balconi
1
Terrazze / Logge
1
Metratura giardino
3700
Piano
Su più livelli
Tipologia Immobile
Villa singola
Categoria Immobile
Case e Appartamenti
Contatta Agenzia
Proposto da: Progetto Casa Ferrara

Quotazioni immobiliari per Via Corazza - Ferrara