300 mq
6
3
Giardino privato
Arredato
Autonomo
G

Descrizione

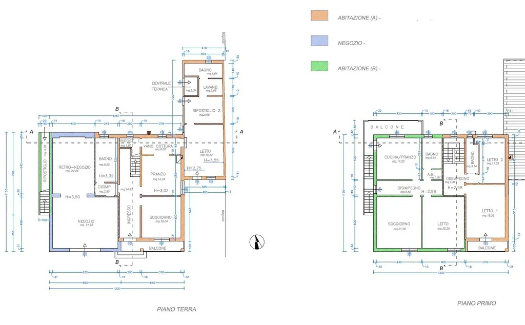
Rif. 3582 - Casa Indipendente con Spazioso Giardino e Ottima Visibilità Commerciale a Quartesana, Ferrara. Casa indipendente su 4 lati con giardino sui 3 lati. Situata a Quartesana, direttamente sulla via principale, offre una visibilità eccezionale per l'attività commerciale inclusa. La casa, costruita nel 1965, e ́ composta da tre unità distinte. Una porzione di casa su piano terra e primo, una negozio allo stesso piano trasformabile in abitativo o in ufficio per una opportunità di case e lavoro. Tramite scala esterna si accede ad un' ulteriore unità abitativa al piano primo. Caratteristiche Principali: Appartamento al Primo Piano (Circa 100 mq): - Ampia cucina abitabile, luminosa e accogliente - Camera da letto matrimoniale spaziosa e confortevole - Soggiorno, bagno ampio e pratico ripostiglio. - Terrazza perfetta per momenti di relax all'aperto - Soffitta come ulteriore spazio Negozio (Circa 70 mq): - Ideale per avviare o espandere il tuo lavoro o come ufficio - Bagno privato per massima comodità - Spazio ampio per esporre i tuoi prodotti Il negozio può essere trasformato in ampio garage alla necessità Appartamento su due Piani (Circa 130 mq): - Ingresso accogliente - Spazioso soggiorno - Sala da pranzo di ampie dimensioni - Cucina separata da una porta a vetri che può essere rimossa in caso di necessita. - Camera matrimoniale con balcone privato - Seconda stanza perfetta come ufficio o camera aggiuntiva - Bagno con doccia e finestra Depandance (2 stanze + antibagno e bagno) con accesso diretto al giardino. Ingresso indipendente sul fronte e collegata all'appartamento su due piani, ideale per ospiti o affitti a breve termine. Questa residenza offre la flessibilità di ospitare due famiglie separate o di gestire un'attività commerciale in modo comodo e diretto. Il vasto giardino e il cortile offrono spazio per giochi, relax e persino la possibilità di creare un giardino da sogno. Nella parte posteriore oltre al giardino vi e´ un piazzale con tettoia dove possono stare comodamente due automobili. Lo spazio è di circa 2000 mq. Il terreno è fabbricabile verificando i piani comunali. Situata in una posizione strategica sulla via principale di Quartesana, garantisce un'ottima visibilità per il tuo negozio ed e´ a 4 km dall'ospedale di Cona. Opportunità unica. Potete contattarci senza impegno per ricevere maggiori informazioni o per prenotare un appuntamento per visionare questo appartamento Casa Indipendente con Spazioso Giardino e Ottima Visibilità Commerciale a Quartesana, Ferrara. COD. 3582. €. 445.000

Altre caratteristiche

Stato Immobile
In ottime condizioni
Anno costruzione
1965
Vani
10
Tipo di cucina
Abitabile
Balconi
1
Terrazze / Logge
1
Metratura giardino
2000
Piano
Su più livelli
Piani totali della palazzina
2
Tipologia Immobile
Villa singola
Categoria Immobile
Case e Appartamenti
Contatta Agenzia
Proposto da: Progetto Casa Ferrara

Quotazioni immobiliari per Via Comacchio - Ferrara