450 mq
3
4
Garage/Posto Auto
Giardino privato
Autonomo
In attesa di certificazione

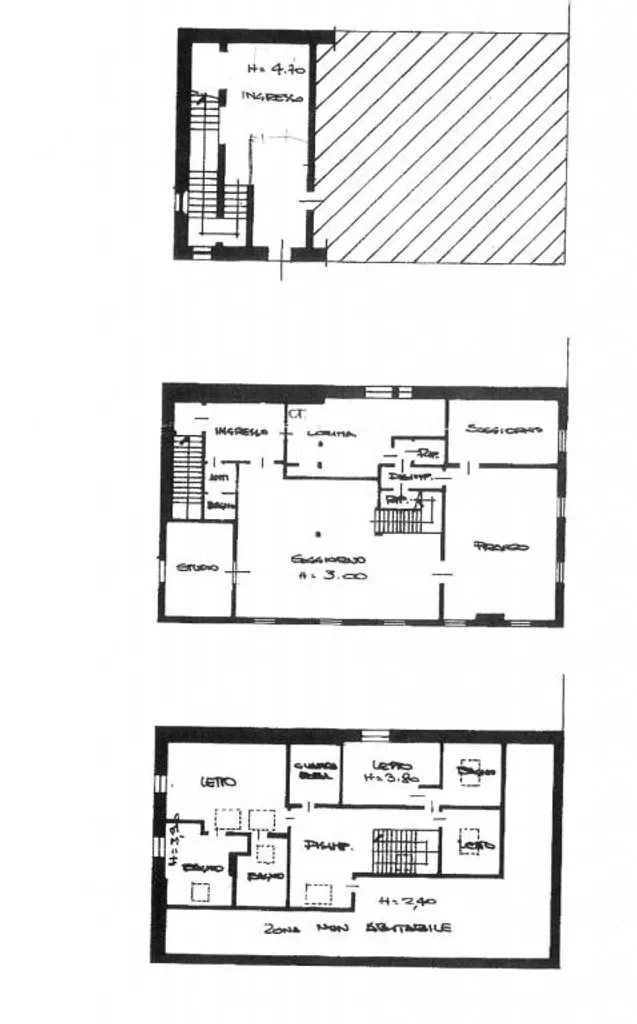
Descrizione

Rif. 1418 - Casa indipendente in via Carlo Mayr con autorimessa e posto auto privati. Prestigiosa casa d'angolo completamente ristrutturata negli anni '90 con materiali di pregio e così disposta: al piano terra ampio salone d’ingresso con zona cantina e collegamento ai posti auto. Al primo piano grandissima zona giorno con salone di oltre 50 mq, studio, grande sala da pranzo con camino, eventuale altro studio o quarta camera da letto, cucina abitabile. Bagno. Al piano superiore tre camere da letto di cui una matrimoniale con doppio bagno, un guardaroba, due camere da letto e un ulteriore bagno. Zona disimpegno. Sottotetto con zona lavanderia. Al piano terra facente parte dello stesso stabile che andrebbe a completare l’intero blocco, una enorme autorimessa per cinque macchine. Possibilità di acquisto separato o del singolo posto auto. Infissi nuovi su tutta la parte giorno. Potete contattarci senza impegno per maggiori informazioni o per prenotare un appuntamento per visionare questa Casa indipendente in via Carlo Mayr con autorimessa e posto auto privati. Cod. 1418. €. 600.000

Altre caratteristiche

Stato Immobile
In ottime condizioni
Anno costruzione
1700
Vani
10
Tipo di cucina
Abitabile
Terrazze / Logge
1
Piano
Su più livelli
Piani totali della palazzina
2
Condizionamento
Installato
Tipologia Immobile
Villa singola
Categoria Immobile
Case e Appartamenti
Contatta Agenzia
Proposto da: Progetto Casa Ferrara

Quotazioni immobiliari per Via Carlo Mayr - Ferrara