150 mq
2
2
Giardino privato
Autonomo
E

Descrizione

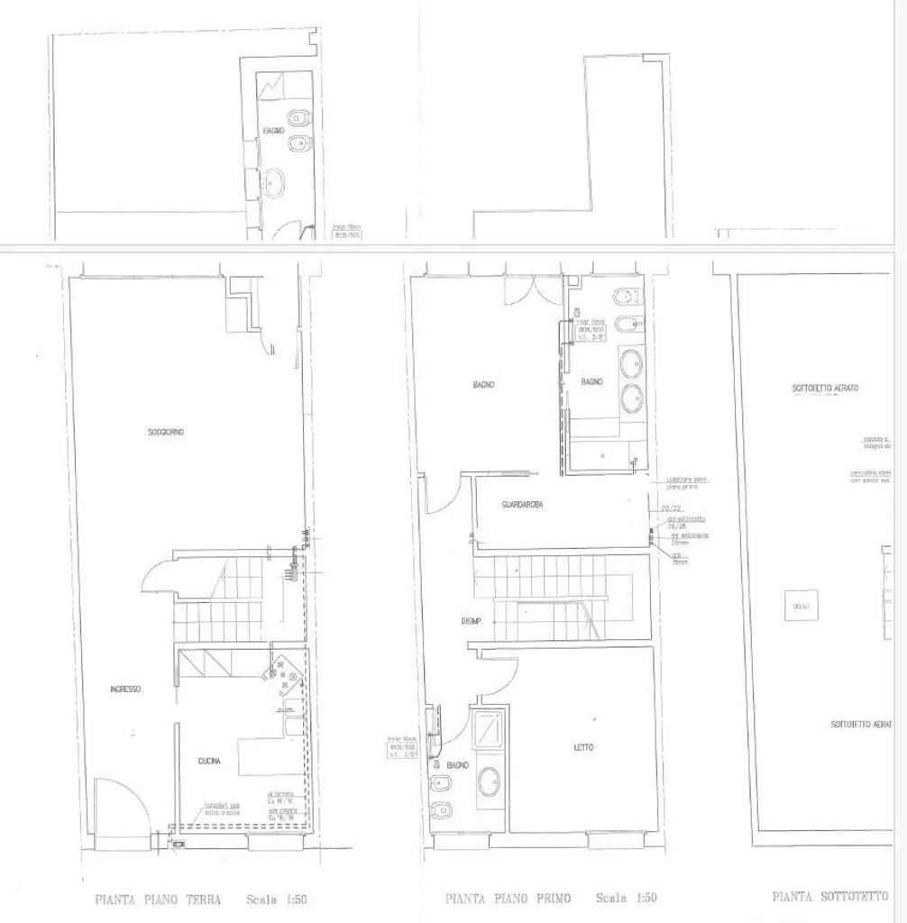
Rif. 3976 - Casa indipendente con giardino in affitto, Corso Porta Mare, Ferrara. Di recente ristrutturazione, splendida monofamiliare con giardino così disposta: Ingresso, cucina abitabile, ampia sala con vetrata sul giardino privato interno, camino, antibagno e bagno. Al piano superiore, una camera da letto con bagno privato, cabina armadio dedicata e balcone. Una seconda camera matrimoniale. Bagno Al piano superiore mansardato, una comodissima zona Mansarda utilizzabili anche come studio, ulteriore zona lavanderia e ripostigli nelle parti più basse. Utenze autonome e climatizzata. I bagni sono finestrati e le finiture dell’immobile sono ricercate per il massimo comfort. Situata in posizione molto richiesta, a due passi dalla Piazza Ariostea e dalle mura della città. Potete contattarci senza impegno per ricevere maggiori informazioni o per prenotare un appuntamento per visionare questa Casa indipendente con giardino in affitto, Corso Porta Mare, Ferrara. Cod. 3976. €. 1.300 mensili.

Altre caratteristiche

Anno costruzione
2000
Vani
4
Tipo di cucina
Abitabile
Balconi
1
Terrazze / Logge
1
Metratura giardino
40
Piano
Su più livelli
Piani totali della palazzina
3
Condizionamento
Installato
Tipologia Immobile
Villa singola
Categoria Immobile
Case e Appartamenti
Contatta Agenzia
Proposto da: Progetto Casa Ferrara