14

Descrizione

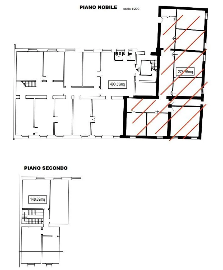
Rif. 1568 - Ufficio in affitto a Ferrara, via Contrari. In elegante palazzo d'epoca ristrutturato e dotato di ascensore, ufficio sito al primo piano, circa 400 mq al primo piano e 136 mq al piano superiore. E' composto da: Ingresso con zona reception e 2 bagni, 9 vani di cui uno adibibile a sala riunioni di grandi dimensioni. Al piano superiore: 4 uffici di grandi dimensioni. Riscaldamento centralizzato. Potete contattarci senza impegno per maggiori informazioni o per prenotare un appuntamento pee visionare questo ufficio in affitto a Ferrara, via Contrari. Cod. 1568 € 3.500

Altre caratteristiche

Categoria Immobile
Commerciali e Attività
Tipologia Immobile
Ufficio / Studio
Metri Quadri
536 mq
Classe energetica
In attesa di certificazione
Riscaldamento
Autonomo
Piani totali della palazzina
2
Piano
1
Stato Immobile
In ottime condizioni
Contatta Agenzia
Proposto da: Progetto Casa Ferrara