85 mq
3
1
Garage/Posto Auto
Giardino privato
Centralizzato - Contacalorie
G

Descrizione

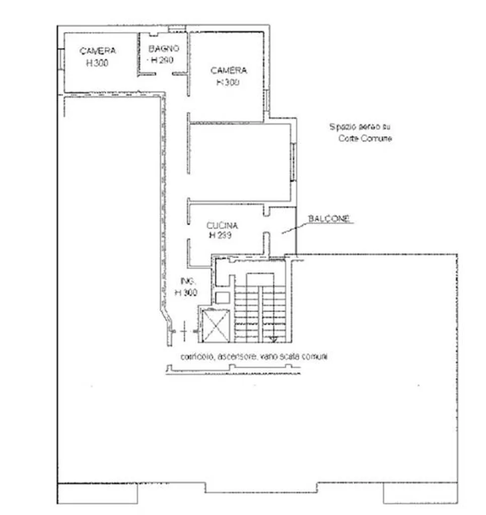
Rif. 3813 - Appartamento in affitto per studenti con tre camere e garage, a Ferrara, Corso Isonzo, adiacente via Rampari di San Paolo. In posizione comoda ai parcheggi e al centro storico della città, si affitta appartamento sito al terzo piano servito da ascensore e composto da: ingresso, cucina abitabile con balcone, corridoio notte, tre camere da letto di grandi dimensioni, bagno finestrato con doccia. Cantina. Garage. L’immobile, per la sua conformazione si presta come abitazione affitto per studenti. Infissi nuovi in Pvc Bianco. Potete contattarci senza impegno per ricevere maggiori informazioni o per prenotare un appuntamento per visionare questo Appartamento in affitto per studenti con tre camere e garage, a Ferrara, Corso Isonzo, adiacente via Rampari di San Paolo. Cod. 3813.€.800. mensili + 195€ di acconto mensile di spese (65 a testa), con conguaglio + utenza elettrica.

Altre caratteristiche

Stato Immobile
In buone condizioni
Vani
3
Tipo di cucina
Non Indicato
Balconi
1
Terrazze / Logge
1
Piano
3
Piani totali della palazzina
4
Spese condominiali
€ 195 €/mese
Ascensore
Tipologia Immobile
Appartamento
Categoria Immobile
Case e Appartamenti
Contatta Agenzia
Proposto da: Progetto Casa Ferrara