3

Descrizione

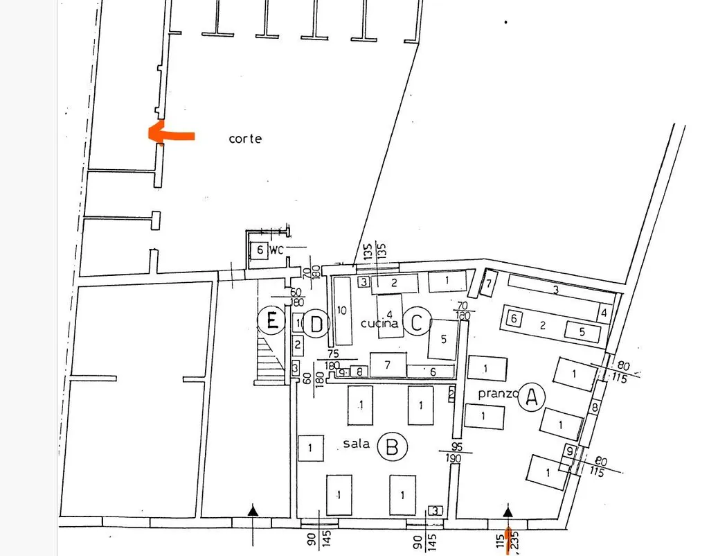
Rif. 3752 - Locale commerciale ad uso ristorante trattoria in vendita a Ferrara, centro storico. In posizione strategica vicino a tutti i parcheggi e al centro della città vendiamo adiacente alle mura della città , i muri di rinomata trattoria con oltre 40 anni di storia. Attualmente l’immobile si compone di entrata sul primo vano arredato di tavoli e un bancone bar. Una seconda sala con tavoli per ospiti. Cucina separata e finestrata completa di cappa di aspirazione. Bagno in corte sul retro e magazzino ad uso ripostiglio. L’attività ha operato fino a pochi mesi fa ed è attualmente sospesa. La vicinanza al parcheggio di San Lorenzo, alla zona mercato del lunedì e ai locali commerciali di via Carlo Mayr e Piazza Verdi, lo rendono appetibile per qualsiasi altro sviluppo di ristorazione, osteria, bar, o negozio di vendita. Potete contattarci senza impegno per ricevere maggiori informazioni o prenotare un appuntamento per Visionare questo Locale commerciale ad uso ristorante trattoria in vendita a Ferrara, centro storico. Cod. 3752. Vendita Muri . € 125.000.

Altre caratteristiche

Categoria Immobile
Commerciali e Attività
Tipologia Immobile
Negozio / Locale Commerciale
Metri Quadri
70 mq
Classe energetica
G
Riscaldamento
Autonomo
Piano
Terra
Bagni
1
Contatta Agenzia
Proposto da: Progetto Casa Ferrara

Quotazioni immobiliari per Via Spronello - Ferrara