130 mq
3
2
Giardino privato
Autonomo
B

Descrizione

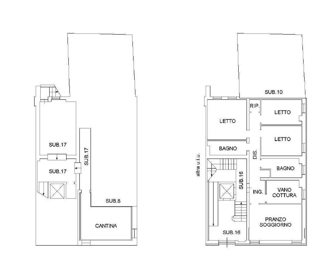
Rif. 3979 - Appartamento composto auto esclusivo in elegante da palazzina del centro storico della città. Adiacenze via Cosmè Tura, si affitta al piano rialzato servito da ascensore e in totale assenza di barriere architettoniche, splendido appartamento disposto su unico piano, arredato di sola cucina e più precisamente così composto: Ingresso, ampio salone d’angolo rivolto sud, cucina abitabile separata, tre camere da letto, due bagni. Ampia cantina al piano seminterrato ed deposito ciclo Comune. Riscaldamento autonomo, ascensore che accompagna dalla cantina al piano abitazione. A servizio dell’appartamento, un posto auto in autorimessa automatizzata con possibilità di affittarne un secondo. Potete contattarci senza impegno per ricevere maggiori informazioni o per prenotare un appuntamento per visionare questo appartamento composto auto esclusivo in elegante da palazzina del centro storico della città. Cod. 3979.€. 1.100 mensili.

Altre caratteristiche

Stato Immobile
Ristrutturato
Vani
4
Tipo di cucina
Abitabile
Balconi
1
Terrazze / Logge
1
Piano
Rialzato
Piani totali della palazzina
3
Condizionamento
Installato
Spese condominiali
€ 150 €/mese
Ascensore
Tipologia Immobile
Appartamento
Categoria Immobile
Case e Appartamenti
Contatta Agenzia
Proposto da: Progetto Casa Ferrara